Act now to register your interest in this highly-anticipated development, in an enviable location within the four avenues of central Christchurch. Following the success of 223 Peterborough Street which sold out in 24 hours, Vale is pleased to offer 18 two-level, terraced homes ranging from 72-97sq m in floor area located at 236 Salisbury Street and 327 Cambridge Terrace. Construction is due to start in autumn 2021, with completion expected in summer 2021.
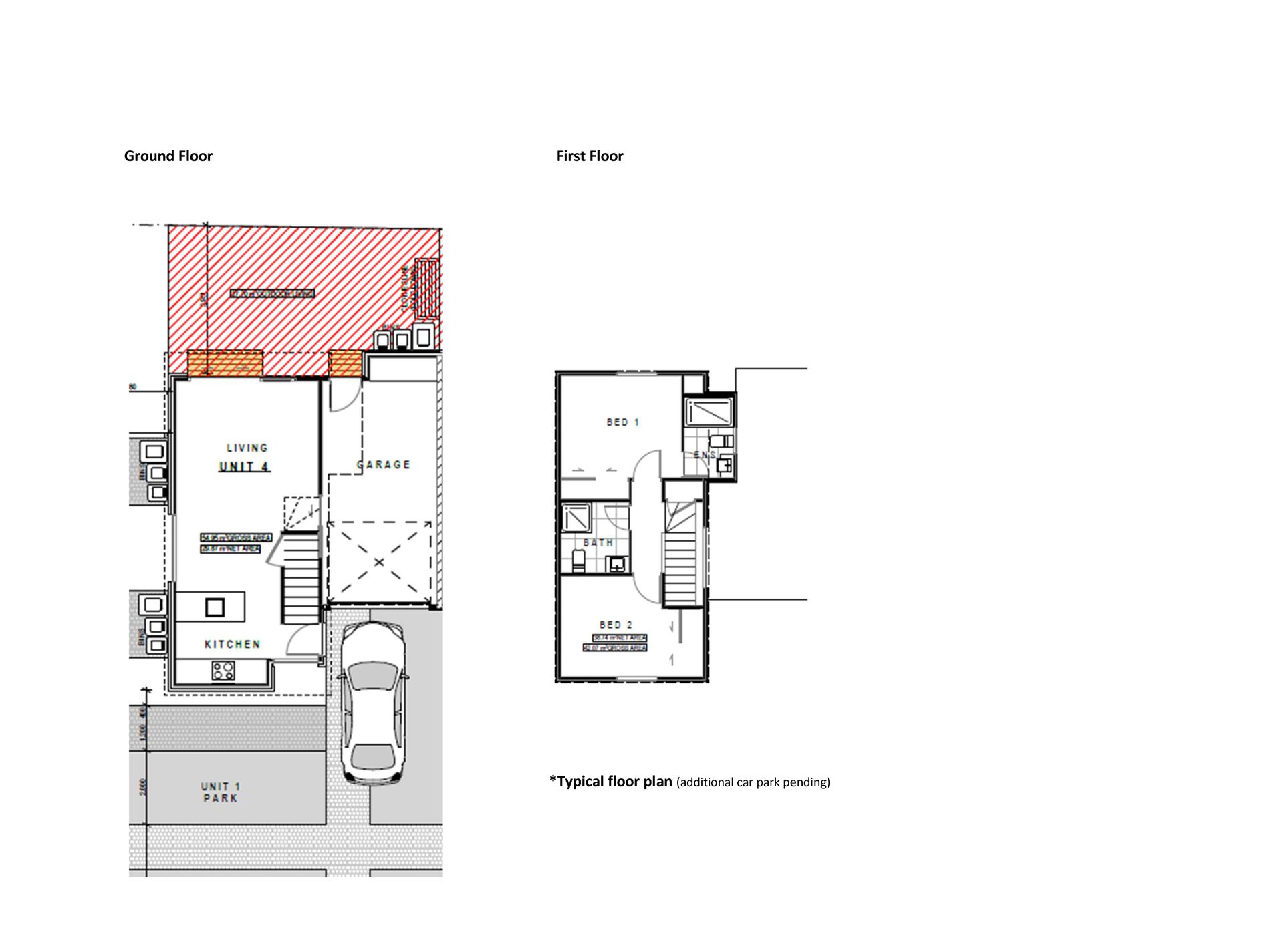
Aligned with the developer's core aim of providing affordable architecture in sought-after locations, the two-level homes at 236 Salisbury Street and 327 Cambridge Terrace offer the latest in highly-efficient, healthy, contemporary living. Featuring bespoke architectural design and garages – the minimum standards for each project they undertake – these homes are a cut above the rest. Take your pick from the two-bedroom options, all with two bathrooms and private courtyard gardens, but don’t delay, this development will sell fast and starting from $575,000.
At 236 Salisbury Street & 327 Cambridge Terrace, you’ll be located right amongst the action of Christchurch’s CBD fringe. An easy ten-minute stroll takes you to the central city retail and entertainment zone, with a plethora of shopping and dining options as well as a buzzing nightlife. Or wander the same short distance westward and enjoy the boutique retail, renowned restaurants and cocktail bars of Victoria Street. On your doorstep is the tranquil, leafy Avon River precinct, including the open green space of the Avon Loop, walking tracks and the Margaret Mahy Family Playground.
Download property information instantly at www.opes.co.nz















